Ufficio in affitto

Cologno Monzese, Via Trento
€ 750 / mese
2 locali 2 locali
140 Mq 140 Mq
1 bagno 1 bagno

Ufficio in affitto

Cologno Monzese, Via Trento

Descrizione annuncio

COSA SAPERE DELL’IMMOBILE

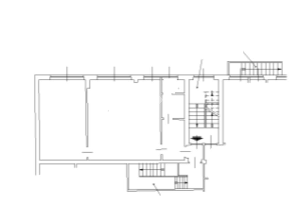
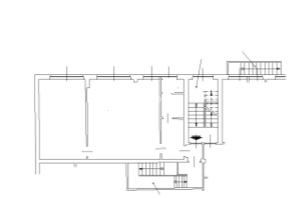
Proponiamo in locazione un ampio spazio direzionale di circa 140 metri quadrati, situato al piano rialzato di un edificio sviluppato su tre livelli. La superficie si suddivide in 70 metri quadrati adibiti a ufficio al piano rialzato e ulteriori 70 metri quadrati di magazzino al piano interrato.

DESCRIZIONE E PARTICOLARITÀ

L’unità offre una superficie complessiva di circa 140 metri quadrati, distribuiti in parte al piano rialzato e in parte al piano interrato. L’altezza interna è di 2,70 metri. Costruito negli anni ’60, l’immobile è stato oggetto di una ristrutturazione nel 1990. Gli ambienti sono suddivisi in più stanze, ciascuna separata da pareti che permettono una distribuzione funzionale e moderna degli spazi. L’ufficio è dotato di impianto elettrico, illuminazione e riscaldamento. Inoltre, l'immobile dispone di un servizio igienico privato. I pavimenti sono in mattonelle e l’immobile gode anche di un affaccio esterno.

UBICAZIONE E CONTESTO

L’immobile si trova nel Comune di Cologno Monzese, in una zona ben collegata alle principali arterie stradali e autostradali. Nei pressi del negozio sono disponibili circa trenta posti auto, comodi per la clientela.

Mostra tutto

Nelle vicinanze

Trasporto pubblico Trasporto pubblico
Cologno Centro
Cologno Centro
390 m
Cologno Sud
Cologno Sud
790 m
Cologno Sud
Cologno Sud
790 m
Cascina Gobba
Cascina Gobba
2,2 Km
Trasporto pubblico
460 m
Ricariche auto elettriche Ricariche auto elettriche
Cologno Monzese Carducci | EnelX
550 m
Cologno Monzese Pascoli | EnelX
670 m
Municipio Di Cologno Monzese | EnelX
980 m
COLOGNO MONZESE Tintoretto | ENELX
1,2 Km
Cologno Monzese Buonarroti | EnelX
1,4 Km
Scuole Scuole
Scuola Secondaria di Primo Grado Ada Negri
300 m
Scuola Secondaria di Primo Grado Alessandro Volta
310 m
Scuola Primaria Amerigo Vespucci
400 m
Scuola Primaria di Via Piave
420 m
ACLI Cologno Monzese
650 m
Farmacia Farmacia
Farmacia Ripamartesana
650 m
Farmacia Desenzani
680 m
Farmacia europea
780 m
Farmacia centrale
890 m
Farmacia
1,3 Km
Ospedali Ospedali
Ospedale San Raffaele
2,4 Km
Supermercati Supermercati
Conad
360 m
U2
570 m
Carrefour
690 m
Simply Market
750 m
UNES
940 m
Negozi Negozi
Le Delizie del Fornaio
520 m
Zucchero
620 m
New Moda
640 m
Robe di Kappa
670 m
M & M
700 m
Bar Bar
Il Posticino
480 m
Chiringuito
740 m
Bar Luna
1,1 Km
AgipCafè
1,4 Km
Bar
1,9 Km
Ristoranti Ristoranti
Ristoranti
550 m
Artéteca
610 m
Asahi
620 m
Pizzeria Castello
770 m
La Rosa dei Venti
850 m
Mostra tutto

Caratteristiche

Rif.:
61124071
Piano:
Terra di 3
Totale piani:
3
Posti auto:
30
Condizionamento:
Assente
Ascensore:
No
Mostra tutto
Prezzo Prezzo
€ 750 / mese
Spese annue Spese annue
€ 1.000

Altre caratteristiche

Descrizione dei locali
Bagno Con Finestra

Classe Energetica

Questo immobile è esente da classe energetica
Anno di costruzione:
1960
Riscaldamento:
Autonomo
Tipo impianto:
Ad aria
Tipo alimentazione:
Aria

Ti interessa visionare l'immobile?

Fissa un appuntamento  Fissa un appuntamento

Richiedi informazioni

* Questi campi sono obbligatori
Affiliato
Industriale Steana Srl
Via Cerca, 1 20049 Settala (MI)

Il nostro staff


  • Gaia Barbieri
    Coordinatrice

  • Sara Colombi
    Collaboratrice

  • Alexandru George Receanu
    Affiliato

  • Veronica Sergio
    Collaboratrice

  • Manuel Tonelli
    Collaboratore

  • Sacha Varanini
    Affiliato
Via Cerca, 1 20049 Settala (MI)
Zona: Settala
Mostra su mappa
Affiliato
Industriale Steana Srl
Via Cerca, 1 20049 Settala (MI)

2025 Tecnocasa Franchising S.p.A. - P. IVA 08365160152 - Via Monte Bianco 60/A 20089 Rozzano (MI). Ogni agenzia ha un proprio titolare ed è autonoma. Privacy policy | Policy utilizzo | Cookie policy