Capannone in affitto

Gessate, Via Galileo Galilei
2 locali 2 locali
1000 Mq 1000 Mq
2 bagni 2 bagni

Capannone in affitto

Gessate, Via Galileo Galilei

Descrizione annuncio

COSA SAPERE DELL’IMMOBILE

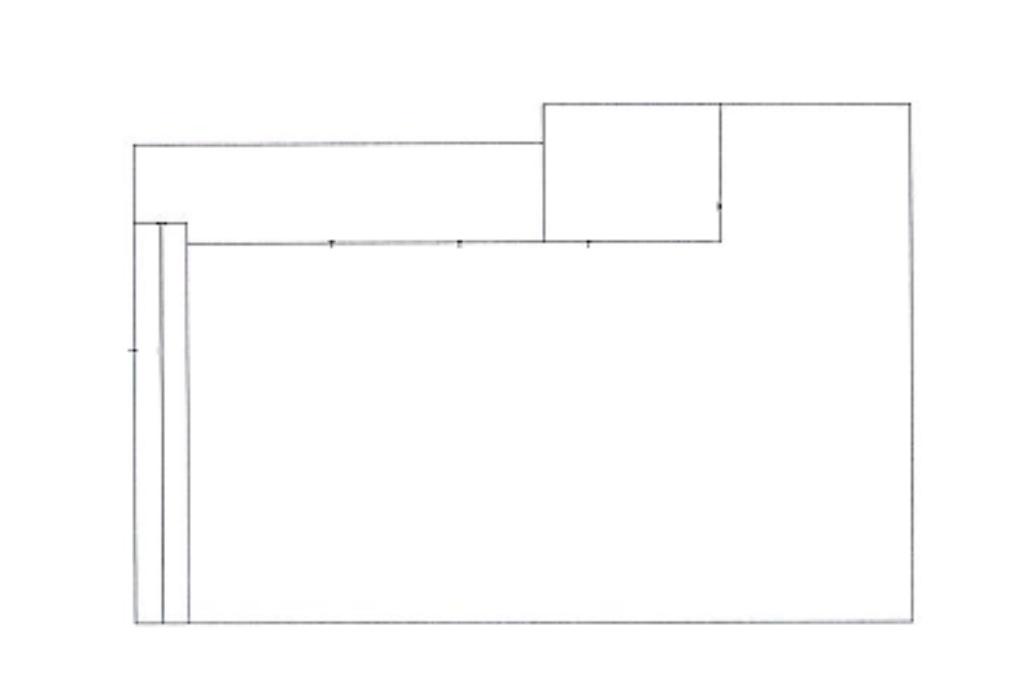
Proponiamo in affitto un capannone di circa 1.000 metri quadrati al piano primo, con una superficie destinata a uffici di 15 metri quadrati.

DESCRIZIONE E PARTICOLARITÀ

L’immobile ha una superficie totale di circa 1.000 metri quadrati, così suddivisi:

Circa 985 metri quadrati di area produttiva situata al primo piano, con un’altezza interna di 5 metri (3,5 metri sotto trave).

Il capannone è composto da due campate e dispone di un comodo accesso carraio, oltre a due ampi portoni di 3,5 metri.

Gli uffici di circa 15 metri quadrati si trovano anch’essi al primo piano. Completano la proprietà due bagni con spogliatoi e docce.

UBICAZIONE E CONTESTO

L’immobile è situato nella zona industriale del Comune di Gessate, in una posizione strategica grazie alla vicinanza alle principali strade e autostrade della zona. All’esterno dell’immobile, lungo la via, sono disponibili circa 20 posti auto, comodi sia per dipendenti che per visitatori.

Mostra tutto

Nelle vicinanze

Trasporto pubblico Trasporto pubblico
Cascina Antonietta
Cascina Antonietta
1,9 Km
stazione di Gessate
stazione di Gessate
2,0 Km
Via Brianza-Sondrio
Via Brianza-Sondrio
930 m
Piazza Roma
Piazza Roma
1,1 Km
Scuole Scuole
Scuola Secondaria Cesare Beccaria
1,1 Km
Scuola Primaria Armando Diaz
1,2 Km
Scuola Materna Stefano Lattuada
1,3 Km
Scuola Secondaria di Primo Grado Cesare Beccaria
1,4 Km
Scuola Primaria Antonio Locatelli
1,5 Km
Farmacia Farmacia
Farmacia Mauri
1,4 Km
Farmacia Comunale
1,7 Km
Ospedali Ospedali
Ospedale Serbelloni - Gorgonzola
2,9 Km
Supermercati Supermercati
Punto Simply
1,5 Km
Il Gigante Cavenago
1,7 Km
Esselunga
2,3 Km
UNES
2,5 Km
Centro Servizi La Fenice
2,5 Km
Negozi Negozi
Punto Giallo
1,1 Km
Fornaio Bordogna
1,1 Km
Prestinè
1,6 Km
Il Fornaio
2,5 Km
Metamorfosi moda
2,9 Km
Bar Bar
Vino Blues Wine Bar
930 m
Bar Coperativa
1,1 Km
Bar Sport
1,1 Km
Il Portichetto
1,1 Km
Caffè Centrale
1,3 Km
Ristoranti Ristoranti
Trattoria dei Tigli
880 m
Pizzeria San Michele 2
940 m
Agriturismo Fossati
1,1 Km
Ristorante Albergo Roma
1,1 Km
Pizzeria Marina
1,3 Km
Mostra tutto

Caratteristiche

Rif.:
61119894
Piano:
1 di 1 (Piano su più livelli)
Posti auto:
20
Condizionamento:
Assente
Ascensore:
No
Riscaldamento:
Assente
Mostra tutto
Prezzo Prezzo
€ 4.500 / mese
Spese annue Spese annue
€ 0
Anche in vendita a

Classe Energetica

Questo immobile è esente da classe energetica
Anno di costruzione:
1980
Riscaldamento:
Assente

Ti interessa visionare l'immobile?

Fissa un appuntamento  Fissa un appuntamento

Richiedi informazioni

Clicca su Leggi per aprire l'informativa
* Questi campi sono obbligatori
Affiliato
Industriale Steana Srl
Via Cerca, 1 20049 Settala (MI)

Il nostro staff


  • Gaia Barbieri
    Collaboratrice

  • Sara Bruno
    Coordinatrice

  • Sara Colombi
    Collaboratrice

  • Claudia Casuscelli
    Collaboratrice

  • Alexandru George Receanu
    Affiliato

  • Veronica Sergio
    Collaboratrice

  • Manuel Tonelli
    Collaboratore

  • Sacha Varanini
    Affiliato
Via Cerca, 1 20049 Settala (MI)
Zona: Settala
Mostra su mappa
Affiliato
Industriale Steana Srl
Via Cerca, 1 20049 Settala (MI)

2025 Tecnocasa Franchising S.p.A. - P. IVA 08365160152 - Via Monte Bianco 60/A 20089 Rozzano (MI). Ogni agenzia ha un proprio titolare ed è autonoma. Privacy policy | Policy utilizzo | Cookie policy