Capannone in vendita

Gorgonzola, Via per Cascina Rafredo
€ 670.000
1 locale 1 locale
480 Mq 480 Mq
1 bagno 1 bagno

Capannone in vendita

Gorgonzola, Via per Cascina Rafredo

Descrizione annuncio

COSA SAPERE DELL’IMMOBILE

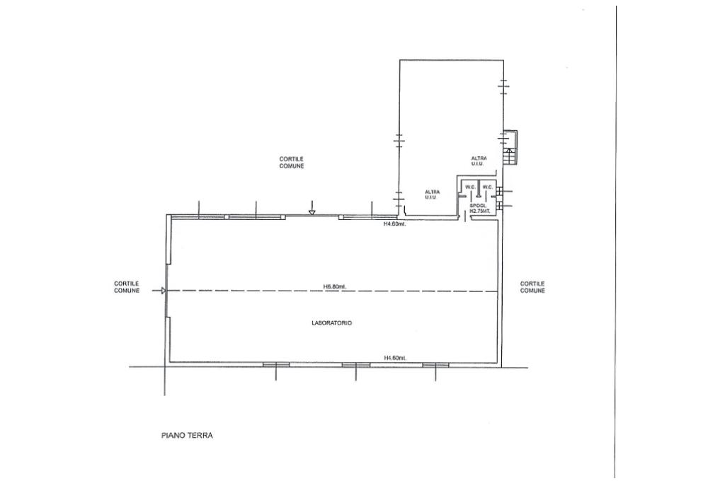
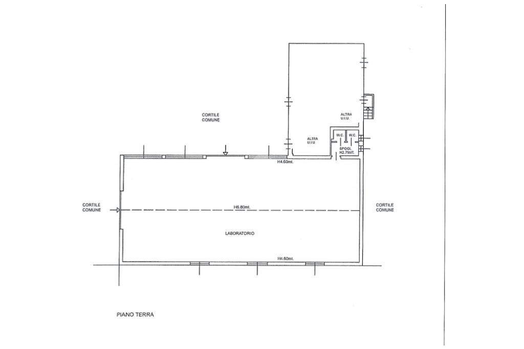
Proponiamo in vendita un capannone di circa 2290 metri quadrati complessivi, tra cui, 300 effettivi di capannone open space, 90mq di zona uffici, 90mq di appartamento disposto al primo piano. La proprietà è costituita da . 1900 mq di area esterna.

DESCRIZIONE E PARTICOLARITÀ

L’immobile ha un’altezza di 7,2 metri, (sottotrave 6m) con un portene di 3,78 metri. Il capannone possiede due accessi carrai. Ha una predisposizione per l’impianto elettrrico. Lo stabile offre un servizio igienico.

All’interno della proprietà si presenta un appartamento di . 90 metri quadrati, situato al piano primo

UBICAZIONE E CONTESTO

L’immobile è situato nel comune di Gorgonzola, in una posizione strategica e ben collegata alle principali arterie stradali e autostradali. La zona è facilmente raggiungibile e ben servita. La proprietà dispone di una trentina di posti auto disponibili nelle immediate vicinanze, ideali per i clienti.

Mostra tutto

Nelle vicinanze

Trasporto pubblico Trasporto pubblico
Gorgonzola
Gorgonzola
1,3 Km
Villa Pompea
Villa Pompea
1,6 Km
Trasporto pubblico
140 m
GORGONZOLA Parini/Del Parco
GORGONZOLA Parini/Del Parco
210 m
Melzo
Melzo
2,8 Km
Scuole Scuole
Scuole
820 m
Scuola Media Leonardo da Vinci
880 m
Scuola Elementare
910 m
Accademia Formativa Martesana Città di Gorgonzola
920 m
Argentia e Marconi
1,5 Km
Farmacia Farmacia
Farmacia Donati
660 m
Farmacia
1,4 Km
Farmacia Ghiozzi
3,0 Km
Ospedali Ospedali
Ospedale Serbelloni - Gorgonzola
1,1 Km
Ospedale Santa Maria delle Stelle
2,5 Km
Supermercati Supermercati
Lidl
410 m
Carrefour Market
960 m
Conad
1,0 Km
Coop
1,3 Km
Outlet Dolciario
1,6 Km
Negozi Negozi
il focaccione
990 m
Pan per Focaccia
2,4 Km
Abbigliamento Fossati
2,7 Km
Negozi
2,7 Km
Le Bontà di Elena
2,7 Km
Bar Bar
Bar del Parco
430 m
Diamond
940 m
Bar Anna
950 m
Barino
1,0 Km
La Perla
1,2 Km
Ristoranti Ristoranti
Ristopub
690 m
Milano 37
780 m
Due Fratelli
870 m
Zuma a Lenga
1,1 Km
Pizzeria Benvenuti al Sud
1,2 Km
Mostra tutto

Caratteristiche

Rif.:
61144703
Piano:
Terra di 2
Totale piani:
2
Condizionamento:
Assente
Ascensore:
No
Riscaldamento:
Assente
Mostra tutto
Prezzo Prezzo
€ 670.000
Rata mutuo Rata mutuo
€ 3.163 / mese
Spese annue Spese annue
€ 0
Proponi il tuo prezzoProponi il tuo prezzo

Classe Energetica

Questo immobile è esente da classe energetica
Anno di costruzione:
1990
Riscaldamento:
Assente

Ti interessa visionare l'immobile?

Fissa un appuntamento  Fissa un appuntamento

Richiedi informazioni

Clicca su Leggi per aprire l'informativa
* Questi campi sono obbligatori

Calcola il tuo mutuo

Semplice e senza impegno
Anticipo

( % )
Mutuo

( % )

pochi semplici passi

inserisci i tuoi dati
Questionario completato
Grazie per aver richiesto un appuntamento senza impegno con un nostro Consulente del Credito e Assicurativo.

Hai inserito correttamente tutti i dati necessari e a breve riceverai una e-mail con un link da convalidare per inviare i tuoi dati.
Affiliato
Industriale Steana Srl
Via Cerca, 1 20049 Settala (MI)

Il nostro staff


  • Gaia Barbieri
    Collaboratrice

  • Sara Bruno
    Coordinatrice

  • Sara Colombi
    Collaboratrice

  • Claudia Casuscelli
    Collaboratrice

  • Alexandru George Receanu
    Affiliato

  • Veronica Sergio
    Collaboratrice

  • Manuel Tonelli
    Collaboratore

  • Sacha Varanini
    Affiliato
Via Cerca, 1 20049 Settala (MI)
Zona: Settala
Mostra su mappa
Affiliato
Industriale Steana Srl
Via Cerca, 1 20049 Settala (MI)

2025 Tecnocasa Franchising S.p.A. - P. IVA 08365160152 - Via Monte Bianco 60/A 20089 Rozzano (MI). Ogni agenzia ha un proprio titolare ed è autonoma. Privacy policy | Policy utilizzo | Cookie policy