Negozio in affitto

Gorgonzola, Viale Kennedy
€ 1.900 / mese
2 locali 2 locali
150 Mq 150 Mq
1 bagno 1 bagno

Negozio in affitto

Gorgonzola, Viale Kennedy

Descrizione annuncio

COSA SAPERE DELL’IMMOBILE
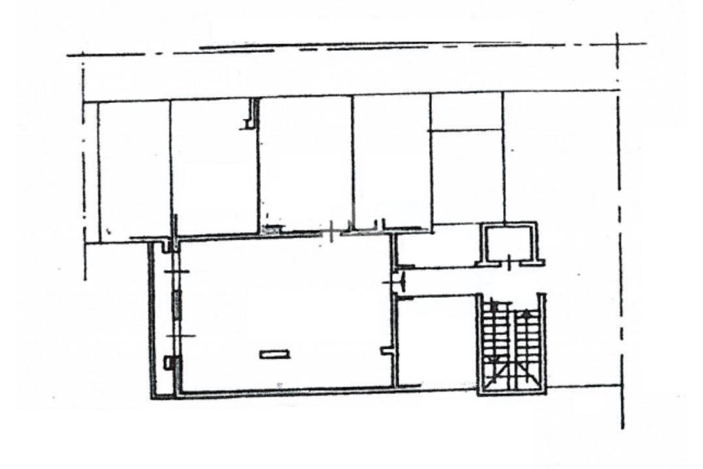
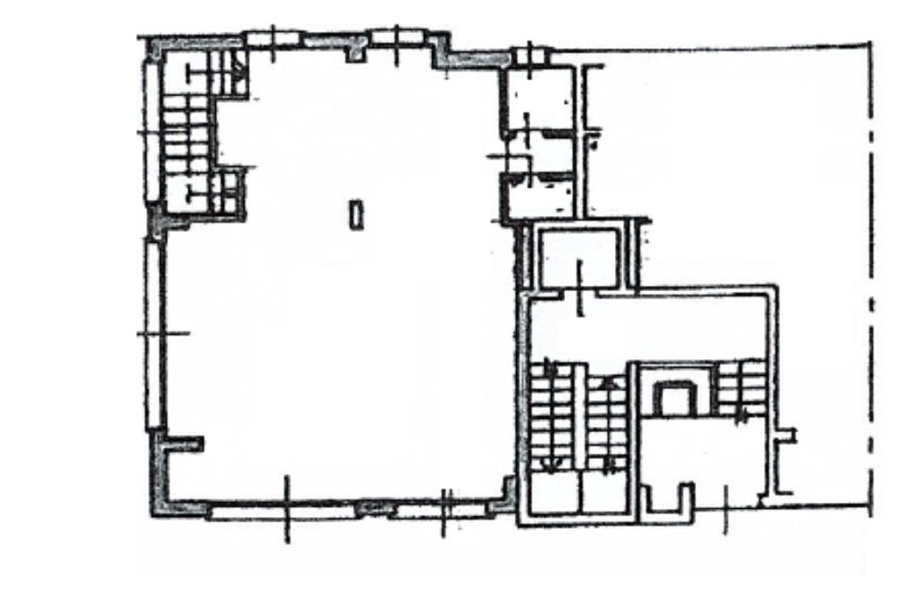
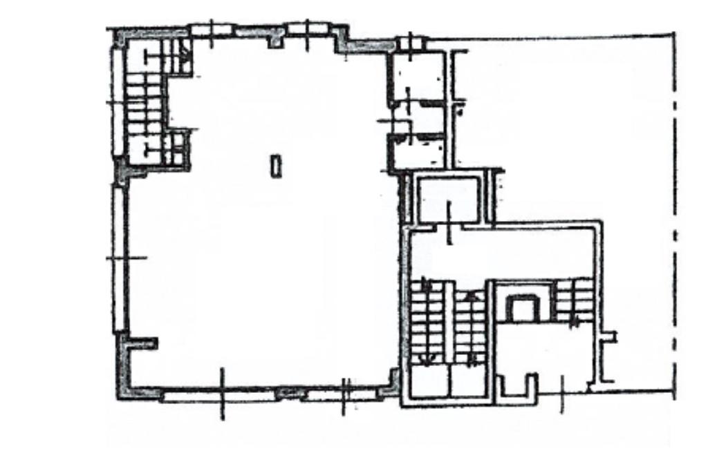
Proponiamo in affitto un negozio di circa 150 mq totali, di cui 80 mq adibiti a negozio e 70 mq a magazzino. L’immobile si trova al piano terra di un edificio di cinque piani.

DESCRIZIONE E PARTICOLARITÀ
Il negozio si presenta in un unico ambiente open space ed è dotato di quattro ampie vetrine su strada, che garantiscono grande visibilità. Ha un’altezza interna di 3,5 metri ed è presente una canna fumaria, utile per attività di ristorazione. L’immobile dispone di doppio ingresso, impianto di riscaldamento, impianto elettrico e illuminazione funzionanti. È presente un servizio igienico.

UBICAZIONE E CONTESTO
L’immobile si trova a Gorgonzola, in una zona comoda per raggiungere le principali arterie stradali e autostradali. La posizione è angolare e ben visibile, con circa 50 posti auto disponibili nelle immediate vicinanze, facilitando l’accesso alla clientela.

INFORMAZIONI AGGIUNTIVE
- deposito cauzionale pari a sei mensilità

Mostra tutto

Nelle vicinanze

Trasporto pubblico Trasporto pubblico
Gorgonzola
Gorgonzola
220 m
Cascina Antonietta
Cascina Antonietta
1,6 Km
Gorgonzola M2
Gorgonzola M2
160 m
Gorgonzola M2 Stazione
Gorgonzola M2 Stazione
170 m
Scuole Scuole
Scuola Elementare
410 m
Argentia e Marconi
420 m
Scuole
690 m
Accademia Formativa Martesana Città di Gorgonzola
690 m
Scuola Media Leonardo da Vinci
700 m
Farmacia Farmacia
Farmacia Donati
470 m
Farmacia
1,8 Km
Farmacia Comunale
2,4 Km
Farmacia Ghiozzi
2,6 Km
Ospedali Ospedali
Ospedale Serbelloni - Gorgonzola
610 m
Supermercati Supermercati
Coop
160 m
Carrefour Market
280 m
Famila
920 m
Outlet Dolciario
1,0 Km
Conad
1,2 Km
Negozi Negozi
il focaccione
140 m
Carrefour Express
2,2 Km
Abbigliamento Fossati
2,3 Km
Le Bontà di Elena
2,4 Km
Negozi
2,5 Km
Bar Bar
Bar
190 m
Barino
300 m
Diamond
310 m
Bar Anna
310 m
Bar del Parco
720 m
Ristoranti Ristoranti
Pizzeria Benvenuti al Sud
140 m
Zuma a Lenga
300 m
Due Fratelli
410 m
Ristopub
830 m
Ristoranti
1,2 Km
Mostra tutto

Caratteristiche

Rif.:
61109800
Piano:
Terra di 5
Totale piani:
5
Posti auto:
50
Condizionamento:
Assente
Ascensore:
No
Mostra tutto
Prezzo Prezzo
€ 1.900 / mese
Spese annue Spese annue
€ 2.160

Classe Energetica

Questo immobile è esente da classe energetica
Anno di costruzione:
1990
Riscaldamento:
Autonomo
Tipo impianto:
Ad aria
Tipo alimentazione:
Aria

Ti interessa visionare l'immobile?

Fissa un appuntamento  Fissa un appuntamento

Richiedi informazioni

Clicca su Leggi per aprire l'informativa
* Questi campi sono obbligatori
Affiliato
Industriale Steana Srl
Via Cerca, 1 20049 Settala (MI)

Il nostro staff


  • Gaia Barbieri
    Collaboratrice

  • Sara Bruno
    Coordinatrice

  • Sara Colombi
    Responsabile

  • Sara Campisano
    Coordinatrice

  • Alexandru George Receanu
    Affiliato

  • Veronica Sergio
    Collaboratrice

  • Sacha Varanini
    Affiliato
Via Cerca, 1 20049 Settala (MI)
Zona: Settala
Mostra su mappa
Affiliato
Industriale Steana Srl
Via Cerca, 1 20049 Settala (MI)

2026 Tecnocasa Franchising S.p.A. - P. IVA 08365160152 - Via Monte Bianco 60/A 20089 Rozzano (MI). Ogni agenzia ha un proprio titolare ed è autonoma. Privacy policy | Policy utilizzo | Cookie policy