Capannone in vendita

Liscate
€ 2.800.000
1 locale 1 locale
6010 Mq 6010 Mq
1 bagno 1 bagno

Capannone in vendita

Liscate

Descrizione annuncio

COSA SAPERE DELL’IMMOBILE

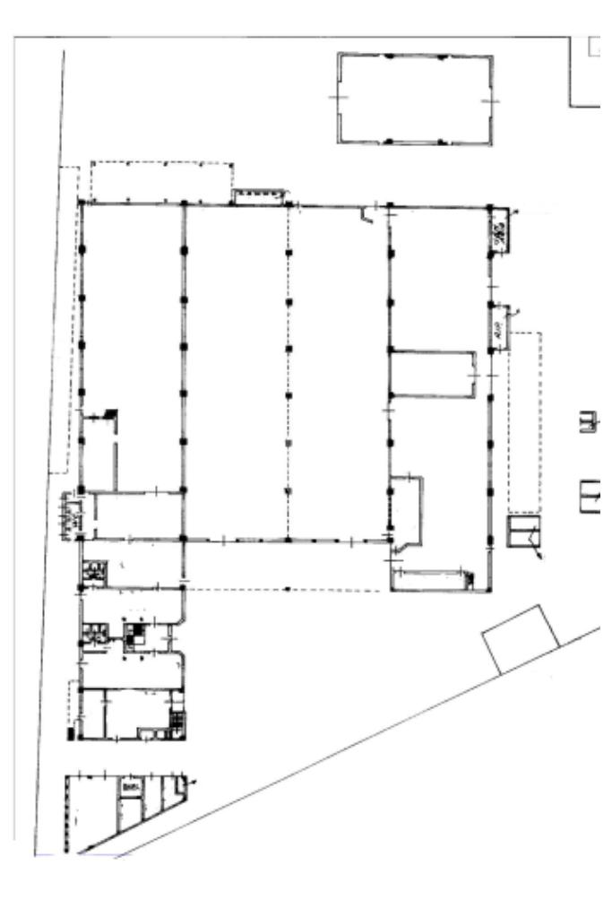
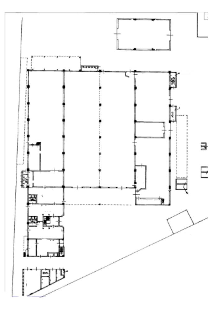
Proponiamo in vendita un lotto di circa 14.500 metri quadrati, di cui 4.500 metri quadrati di capannone industriale, 500 metri quadrati di magazzino, 860 metri quadrati di uffici e 150 metri quadrati di locali tecnici. Completa la proprietà un'area esterna di circa 8.625 metri quadrati.

DESCRIZIONE E PARTICOLARITÀ

Proponiamo in vendita un importante complesso immobiliare a destinazione produttiva, ideale per attività industriali, logistiche o manifatturiere che necessitano di ampi spazi e funzionalità operative.

La proprietà comprende un lotto di circa 14.500 metri quadrati e comprende un capannone principale di circa 4.500 metri quadrati, suddiviso in quattro campate con altezze variabili da 7,30 m a 9,80 m. È presente la predisposizione per l’installazione di carroponte e una camera di verniciatura.

Completano il compendio un magazzino indipendente di circa 500 metri quadrati, una palazzina di 860 metri quadrati per uffici, servizi igienici e una mensa, disposta su due livelli, oltre a locali tecnici per circa 150 mq.

L’immobile è corredato da impiantistica funzionante e certificata e dispone di una ampia area esterna, in parte verde e interamente di proprietà, utilizzabile come area di manovra e parcheggio.

UBICAZIONE E CONTESTO

L’immobile si trova nel Comune di Liscate, in una zona facilmente raggiungibile e con buona visibilità.

Mostra tutto

Nelle vicinanze

Trasporto pubblico Trasporto pubblico
Trasporto pubblico
250 m
Via Leonardo da Vinci (Vignate)
Via Leonardo da Vinci (Vignate)
1,2 Km
stazione di Vignate
stazione di Vignate
1,3 Km
Ricariche auto elettriche Ricariche auto elettriche
Melzo San Rocco Cogeser
2,9 Km
Scuole Scuole
Istituto comprensivo Carlo Levi
1,6 Km
Scuole Elementari
1,9 Km
Scuole Medie Etty Hillesum
2,0 Km
Asilo Comunale
2,1 Km
Scuole
2,9 Km
Farmacia Farmacia
Farmacia Comunale
1,2 Km
Farmacia Sant'Ambrogio
1,4 Km
Farmacia
2,0 Km
Parafarmacia Ipercoop
2,4 Km
Supermercati Supermercati
Belli
1,4 Km
Sigma
1,4 Km
DPiù
1,7 Km
Galassia
1,9 Km
Ipercoop
2,4 Km
Negozi Negozi
Alimentari Anna
1,3 Km
Luisella
1,4 Km
Panetteria Romagnoli
1,5 Km
Negozi
1,7 Km
Ciceri
1,8 Km
Bar Bar
King Bar
1,2 Km
Bigio Bar
1,4 Km
Bar Olivieri
1,4 Km
La Galleria
1,4 Km
Crema Caffè
1,5 Km
Ristoranti Ristoranti
Le Bistrot di Zii Gaetano
190 m
Ristoranti
1,3 Km
Osteria Retrò
1,4 Km
Il Mulino
1,6 Km
Antica Trattoria Bersaglieri
1,7 Km
Mostra tutto

Caratteristiche

Rif.:
61165545
Piano:
Su più livelli di 2
Totale piani:
2
Posti auto:
20
Condizionamento:
Autonomo
Ascensore:
No
Mostra tutto
Prezzo Prezzo
€ 2.800.000
Rata mutuo Rata mutuo
€ 13.193 / mese
Spese annue Spese annue
€ 0
Proponi il tuo prezzoProponi il tuo prezzo

Classe Energetica

Questo immobile è esente da classe energetica
Anno di costruzione:
1980
Riscaldamento:
Assente

Ti interessa visionare l'immobile?

Fissa un appuntamento  Fissa un appuntamento

Richiedi informazioni

Clicca su Leggi per aprire l'informativa
* Questi campi sono obbligatori

Calcola il tuo mutuo

Semplice e senza impegno
Anticipo

( % )
Mutuo

( % )

pochi semplici passi

inserisci i tuoi dati
Questionario completato
Grazie per aver richiesto un appuntamento senza impegno con un nostro Consulente del Credito e Assicurativo.

Hai inserito correttamente tutti i dati necessari e a breve riceverai una e-mail con un link da convalidare per inviare i tuoi dati.
Affiliato
Industriale Steana Srl
Via Cerca, 1 20049 Settala (MI)

Il nostro staff


  • Gaia Barbieri
    Collaboratrice

  • Sara Bruno
    Coordinatrice

  • Sara Colombi
    Responsabile

  • Sara Campisano
    Coordinatrice

  • Alexandru George Receanu
    Affiliato

  • Veronica Sergio
    Collaboratrice

  • Manuel Tonelli
    Collaboratore

  • Sacha Varanini
    Affiliato
Via Cerca, 1 20049 Settala (MI)
Zona: Settala
Mostra su mappa
Affiliato
Industriale Steana Srl
Via Cerca, 1 20049 Settala (MI)

2026 Tecnocasa Franchising S.p.A. - P. IVA 08365160152 - Via Monte Bianco 60/A 20089 Rozzano (MI). Ogni agenzia ha un proprio titolare ed è autonoma. Privacy policy | Policy utilizzo | Cookie policy