Ufficio in affitto

Liscate, Via Trieste
€ 7.000 / mese
20 locali 20 locali
1320 Mq 1320 Mq
4 bagni 4 bagni

Ufficio in affitto

Liscate, Via Trieste

Descrizione annuncio

COSA SAPERE DELL’IMMOBILE

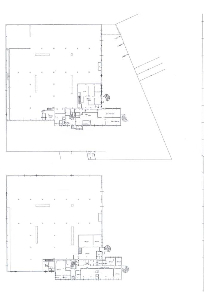
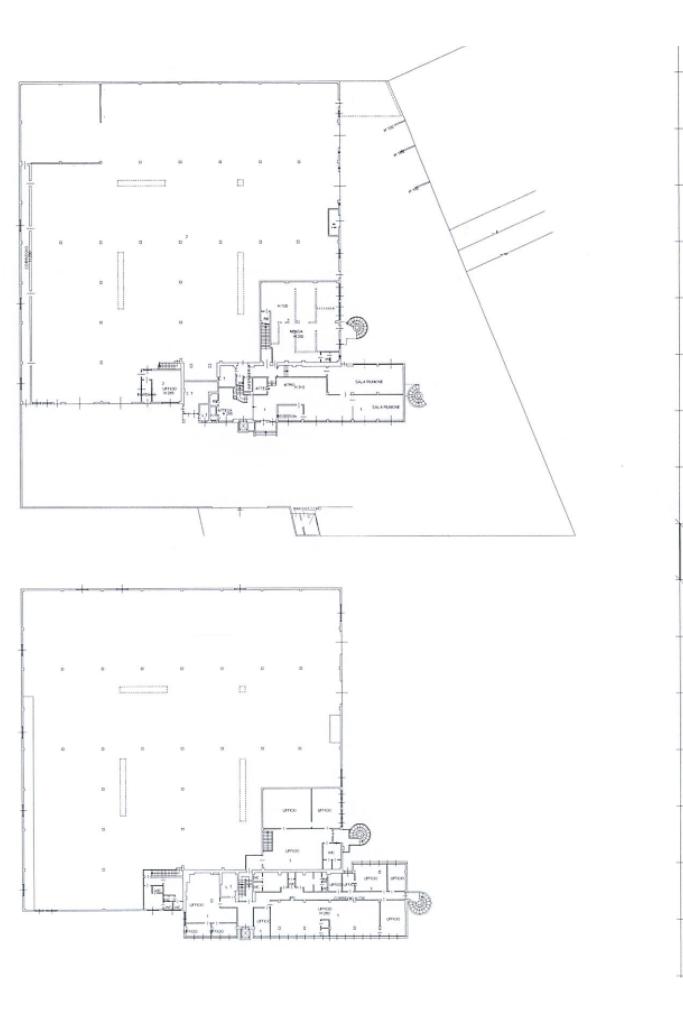
Proponiamo in affitto degli uffici sviluppati su tre livelli con piano terra in uso comune, con una superficie totale di circa 1320 metri quadrati

DESCRIZIONE E PARTICOLARITÀ

L’immobile, si presenta in buone condizioni costruito nel 1990. L’ufficio è dotato di impianto elettrico, illuminazione, condizionamento, riscaldamento e inoltre un impianto di allarme. Presenza di quattro servizi igienici. Dispone di un accesso disponibile anche alle persone con disabilità. A disposizione troviamo circa una trentina di parcheggi ideale per ospitare i clienti.

Il capannone è dotato di impianto elettrico con potenza di 380 kW, impianto di illuminazione, e un servizio igienico completo di antibagno e docce. È inoltre presente un impianto antincendio ad idranti.

UBICAZIONE E CONTESTO

L’immobile è situato nel comune di Liscate, in una posizione strategica e ben collegata alle principali arterie stradali e autostradali. La zona è facilmente raggiungibile e ben servita. La proprietà dispone di una trentina di posti auto disponibili nelle immediate vicinanze, ideali per i clienti.

Mostra tutto

Nelle vicinanze

Trasporto pubblico Trasporto pubblico
Trasporto pubblico
470 m
Via Leonardo da Vinci (Vignate)
Via Leonardo da Vinci (Vignate)
1,3 Km
stazione di Vignate
stazione di Vignate
1,3 Km
Melzo
Melzo
3,0 Km
Ricariche auto elettriche Ricariche auto elettriche
Melzo San Rocco Cogeser
2,7 Km
Scuole Scuole
Istituto comprensivo Carlo Levi
1,6 Km
Scuole Elementari
1,8 Km
Scuole Medie Etty Hillesum
1,9 Km
Asilo Comunale
2,3 Km
Farmacia Farmacia
Farmacia Comunale
1,3 Km
Farmacia Sant'Ambrogio
1,5 Km
Farmacia
1,9 Km
Parafarmacia Ipercoop
2,4 Km
Parafarmacia Mediacal & Beauty
2,9 Km
Supermercati Supermercati
Belli
1,4 Km
Sigma
1,4 Km
DPiù
1,6 Km
Galassia
1,8 Km
Ipercoop
2,3 Km
Negozi Negozi
Alimentari Anna
1,3 Km
Luisella
1,4 Km
Panetteria Romagnoli
1,5 Km
Negozi
1,6 Km
Ciceri
1,6 Km
Bar Bar
King Bar
1,3 Km
Bigio Bar
1,4 Km
Bar Olivieri
1,4 Km
La Galleria
1,4 Km
Crema Caffè
1,5 Km
Ristoranti Ristoranti
Le Bistrot di Zii Gaetano
390 m
Ristoranti
1,3 Km
Osteria Retrò
1,4 Km
Antica Trattoria Bersaglieri
1,6 Km
Il Mulino
1,6 Km
Mostra tutto

Caratteristiche

Rif.:
61145993
Posti auto:
30
Condizionamento:
Autonomo
Ascensore:
Riscaldamento:
Autonomo
Libero:
Mostra tutto
Prezzo Prezzo
€ 7.000 / mese
Spese annue Spese annue
€ 0

Classe Energetica

Questo immobile è esente da classe energetica
Anno di costruzione:
1990
Riscaldamento:
Autonomo
Tipo impianto:
Ad aria
Tipo alimentazione:
Altro

Ti interessa visionare l'immobile?

Fissa un appuntamento  Fissa un appuntamento

Richiedi informazioni

Clicca su Leggi per aprire l'informativa
* Questi campi sono obbligatori
Affiliato
Industriale Steana Srl
Via Cerca, 1 20049 Settala (MI)

Il nostro staff


  • Gaia Barbieri
    Collaboratrice

  • Sara Bruno
    Coordinatrice

  • Sara Colombi
    Responsabile

  • Sara Campisano
    Coordinatrice

  • Alexandru George Receanu
    Affiliato

  • Veronica Sergio
    Collaboratrice

  • Manuel Tonelli
    Collaboratore

  • Sacha Varanini
    Affiliato
Via Cerca, 1 20049 Settala (MI)
Zona: Settala
Mostra su mappa
Affiliato
Industriale Steana Srl
Via Cerca, 1 20049 Settala (MI)

2026 Tecnocasa Franchising S.p.A. - P. IVA 08365160152 - Via Monte Bianco 60/A 20089 Rozzano (MI). Ogni agenzia ha un proprio titolare ed è autonoma. Privacy policy | Policy utilizzo | Cookie policy