Capannone in affitto

Rodano, Via Papa Giovanni XXIII
€ 6.000 / mese
1 locale 1 locale
1200 Mq 1200 Mq
1 bagno 1 bagno

Capannone in affitto

Rodano, Via Papa Giovanni XXIII

Descrizione annuncio

COSA SAPERE DELL’IMMOBILE

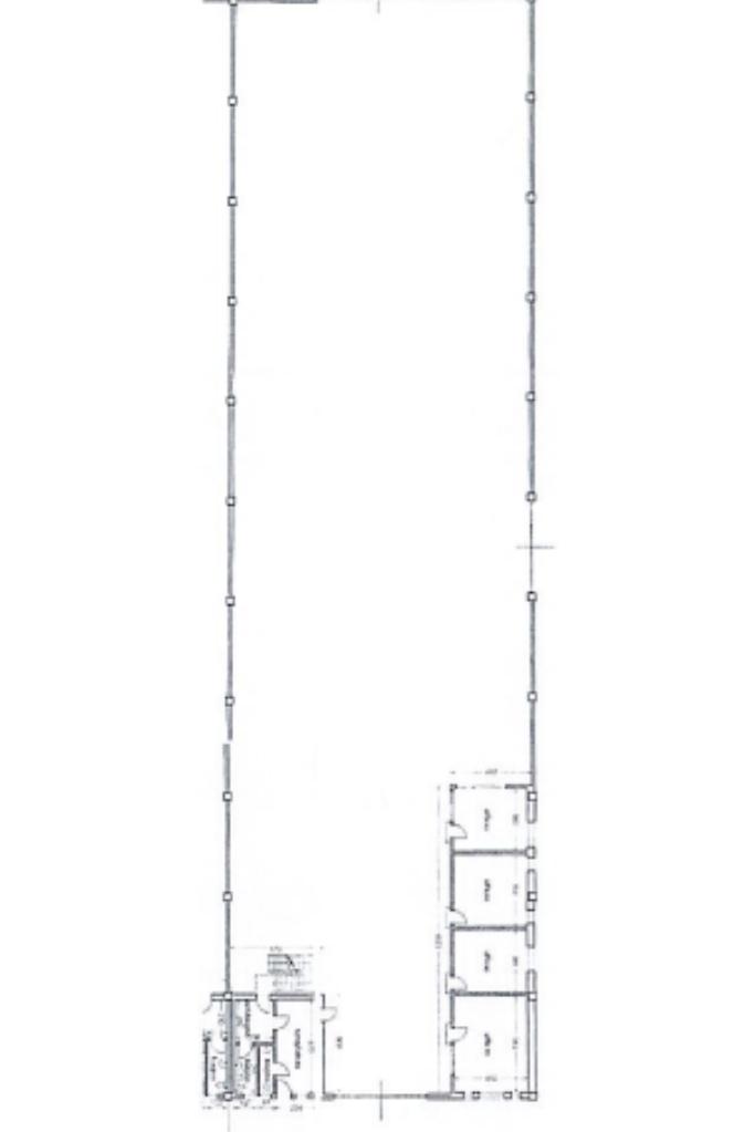
Proponiamo in affitto un capannone di circa 1200 metri quadrati di cui 100 metri quadrati destinati ad uso uffici. Completa la proprietà un'area esterna di circa 900 metri quadrati.

DESCRIZIONE E PARTICOLARITÀ

L’immobile proposto in locazione si sviluppa su una superficie coperta di circa 1.200 metri quadrati ed è completato da un’ampia area esterna di pertinenza di circa 900 metri quadrati, ideale per le operazioni di manovra, carico e scarico.

Il capannone presenta un’altezza interna di 8,00 metri, con altezza sotto trave pari a 7,15 metri, caratteristiche che lo rendono idoneo a molteplici utilizzi produttivi e logistici. L’accesso è garantito da tre ampi portoni carrabile con altezza di 4,00 metri, che consente l’ingresso agevole di mezzi e attrezzature di grandi dimensioni.

L’immobile è dotato di servizio igienico ed è completo di impianto elettrico e di illuminazione. Gli uffici sono serviti da impianto di riscaldamento e condizionamento, garantendo adeguati livelli di comfort e funzionalità per lo svolgimento delle attività lavorative.

UBICAZIONE E CONTESTO

L’immobile si trova nel Comune di Rodano, in una zona facilmente raggiungibile e con buona visibilità. Dispone di una trentina di posti auto totali pubblici.

Mostra tutto

Nelle vicinanze

Trasporto pubblico Trasporto pubblico
Pioltello-Limito
Pioltello-Limito
1,7 Km
Via Giovanni XXIII - Via Kennedy (Millepini)
Via Giovanni XXIII - Via Kennedy (Millepini)
30 m
Via Giovanni XXIII, 48 (Millepini)
Via Giovanni XXIII, 48 (Millepini)
250 m
Segrate
Segrate
3,0 Km
Ricariche auto elettriche Ricariche auto elettriche
Eneldrive Poste San Felice
2,3 Km
Scuole Scuole
Scuole
860 m
ENAIP Pioltello
1,8 Km
Liceo Scientifico Macchiavelli
2,0 Km
Scuola Primaria Antichi Fontanili
2,0 Km
Scuola Secondaria Antichi Fontanili
2,0 Km
Farmacia Farmacia
Farmacia San Riccardo
2,0 Km
Farmacia
2,1 Km
Parafarmacia San Felice
2,1 Km
Supermercati Supermercati
Viridea
1,8 Km
U2
1,8 Km
Aldi
2,0 Km
UNES
2,0 Km
Carrefour Market
2,1 Km
Negozi Negozi
Calzature ciliegie
2,1 Km
Negozi
2,3 Km
Bar Bar
Bar
1,4 Km
Il Trenino
1,5 Km
Bar Il Truciolo
1,8 Km
Papataso
2,0 Km
Voiture Cafè
2,7 Km
Ristoranti Ristoranti
Ristorante pizzeria Aglio e Olio
610 m
La Cadrega
1,3 Km
Antico albergo
1,3 Km
Ristoranti
1,7 Km
Lago Malaspina
1,7 Km
Mostra tutto

Caratteristiche

Rif.:
61164400
Piano:
Su più livelli di 2
Totale piani:
2
Posti auto:
30
Condizionamento:
Autonomo
Ascensore:
No
Mostra tutto
Prezzo Prezzo
€ 6.000 / mese
Spese annue Spese annue
€ 0

Classe Energetica

Questo immobile è esente da classe energetica
Anno di costruzione:
1990
Riscaldamento:
Autonomo
Tipo impianto:
Ad aria
Tipo alimentazione:
Aria

Ti interessa visionare l'immobile?

Fissa un appuntamento  Fissa un appuntamento

Richiedi informazioni

Clicca su Leggi per aprire l'informativa
* Questi campi sono obbligatori
Affiliato
Industriale Steana Srl
Via Cerca, 1 20049 Settala (MI)

Il nostro staff


  • Gaia Barbieri
    Collaboratrice

  • Sara Bruno
    Coordinatrice

  • Sara Colombi
    Responsabile

  • Sara Campisano
    Coordinatrice

  • Alexandru George Receanu
    Affiliato

  • Veronica Sergio
    Collaboratrice

  • Manuel Tonelli
    Collaboratore

  • Sacha Varanini
    Affiliato
Via Cerca, 1 20049 Settala (MI)
Zona: Settala
Mostra su mappa
Affiliato
Industriale Steana Srl
Via Cerca, 1 20049 Settala (MI)

2026 Tecnocasa Franchising S.p.A. - P. IVA 08365160152 - Via Monte Bianco 60/A 20089 Rozzano (MI). Ogni agenzia ha un proprio titolare ed è autonoma. Privacy policy | Policy utilizzo | Cookie policy