Capannone in vendita

Rodano, Via papa giovanni XXIII
€ 900.000
1 locale 1 locale
1060 Mq 1060 Mq
2 bagni 2 bagni

Capannone in vendita

Rodano, Via papa giovanni XXIII

Descrizione annuncio

COSA SAPERE DELL’IMMOBILE

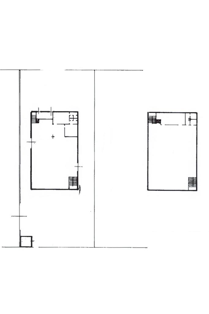
Proponiamo in vendita un capannone di circa 1060 metri quadrati di cui circa 265 metri quadrati destinati ad uso uffici e ulteriori 265 metri quadrati ad uso laboratorio. A completare la proprietà circa 900 metri quadrati di aerea esterna.

DESCRIZIONE E PARTICOLARITÀ

Il capannone è di circa 530 mq al piano terra, caratterizzata da un’altezza interna di circa 4,25 metri, sotto trave 3,25 metri, ideale per ambienti di lavoro versatili e facilmente modulabili. L’accesso avviene tramite un ampio portone carrabile, che consente l’ingresso agevole ai mezzi. Il capannone è dotato di servizi igienici, impianto elettrico, impianto di illuminazione distribuiti su tutto lo stabile e impianto d’allarme. All’interno dell’immobile sono presenti circa 265 metri quadrati di uffici al primo piano dotati di impianto di riscaldamento e condizionamento. Sempre al primo piano troviamo una superficie di circa 265 metri quadrati ad uso laboratorio.

UBICAZIONE E CONTESTO

L’immobile si trova nel Comune di Rodano, in una zona facilmente raggiungibile e con buona visibilità. Dispone di una ventina di posti auto totali pubblici.

Mostra tutto

Nelle vicinanze

Trasporto pubblico Trasporto pubblico
Pioltello-Limito
Pioltello-Limito
1,6 Km
Via Giovanni XXIII, 48 (Millepini)
Via Giovanni XXIII, 48 (Millepini)
130 m
Via Giovanni XXIII - Via Kennedy (Millepini)
Via Giovanni XXIII - Via Kennedy (Millepini)
150 m
Segrate
Segrate
2,9 Km
Ricariche auto elettriche Ricariche auto elettriche
Eneldrive Poste San Felice
2,3 Km
Scuole Scuole
Scuole
950 m
ENAIP Pioltello
1,7 Km
Liceo Scientifico Macchiavelli
1,9 Km
Scuola primaria Falcone e Borsellino
2,1 Km
Scuola Primaria Antichi Fontanili
2,1 Km
Farmacia Farmacia
Farmacia San Riccardo
2,1 Km
Farmacia
2,2 Km
Parafarmacia San Felice
2,2 Km
Supermercati Supermercati
Viridea
1,7 Km
U2
1,7 Km
Aldi
1,8 Km
UNES
2,1 Km
Carrefour Market
2,2 Km
Negozi Negozi
Calzature ciliegie
2,2 Km
Negozi
2,3 Km
Bar Bar
Bar
1,3 Km
Il Trenino
1,4 Km
Bar Il Truciolo
1,9 Km
Papataso
2,1 Km
Voiture Cafè
2,6 Km
Ristoranti Ristoranti
Ristorante pizzeria Aglio e Olio
700 m
La Cadrega
1,1 Km
Antico albergo
1,1 Km
Ristoranti
1,7 Km
Lago Malaspina
1,7 Km
Mostra tutto

Caratteristiche

Rif.:
61192528
Piano:
Terra di 2
Totale piani:
2
Posti auto:
10
Condizionamento:
Autonomo
Ascensore:
No
Mostra tutto
Prezzo Prezzo
€ 900.000
Rata mutuo Rata mutuo
€ 4.276 / mese
Spese annue Spese annue
€ 0
Proponi il tuo prezzoProponi il tuo prezzo

Classe Energetica

Questo immobile è esente da classe energetica
Anno di costruzione:
1970
Riscaldamento:
Autonomo
Tipo impianto:
Ad aria
Tipo alimentazione:
Aria

Ti interessa visionare l'immobile?

Fissa un appuntamento  Fissa un appuntamento

Richiedi informazioni

Clicca su Leggi per aprire l'informativa
* Questi campi sono obbligatori

Calcola il tuo mutuo

Semplice e senza impegno
Anticipo

( % )
Mutuo

( % )

pochi semplici passi

inserisci i tuoi dati
Questionario completato
Grazie per aver richiesto un appuntamento senza impegno con un nostro Consulente del Credito e Assicurativo.

Hai inserito correttamente tutti i dati necessari e a breve riceverai una e-mail con un link da convalidare per inviare i tuoi dati.
Affiliato
Industriale Steana Srl
Via Cerca, 1 20049 Settala (MI)

Il nostro staff


  • Gaia Barbieri
    Collaboratrice

  • Sara Bruno
    Coordinatrice

  • Sara Colombi
    Responsabile

  • Sara Campisano
    Coordinatrice

  • Alexandru George Receanu
    Affiliato

  • Veronica Sergio
    Collaboratrice

  • Sacha Varanini
    Affiliato
Via Cerca, 1 20049 Settala (MI)
Zona: Settala
Mostra su mappa
Affiliato
Industriale Steana Srl
Via Cerca, 1 20049 Settala (MI)

2026 Tecnocasa Franchising S.p.A. - P. IVA 08365160152 - Via Monte Bianco 60/A 20089 Rozzano (MI). Ogni agenzia ha un proprio titolare ed è autonoma. Privacy policy | Policy utilizzo | Cookie policy