Capannone in affitto

Vignate, Via Toscana
€ 1.000 / mese
2 locali 2 locali
190 Mq 190 Mq
1 bagno 1 bagno

Capannone in affitto

Vignate, Via Toscana

Descrizione annuncio

COSA SAPERE DELL’IMMOBILE

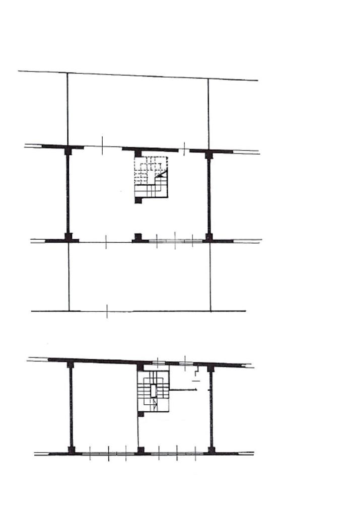
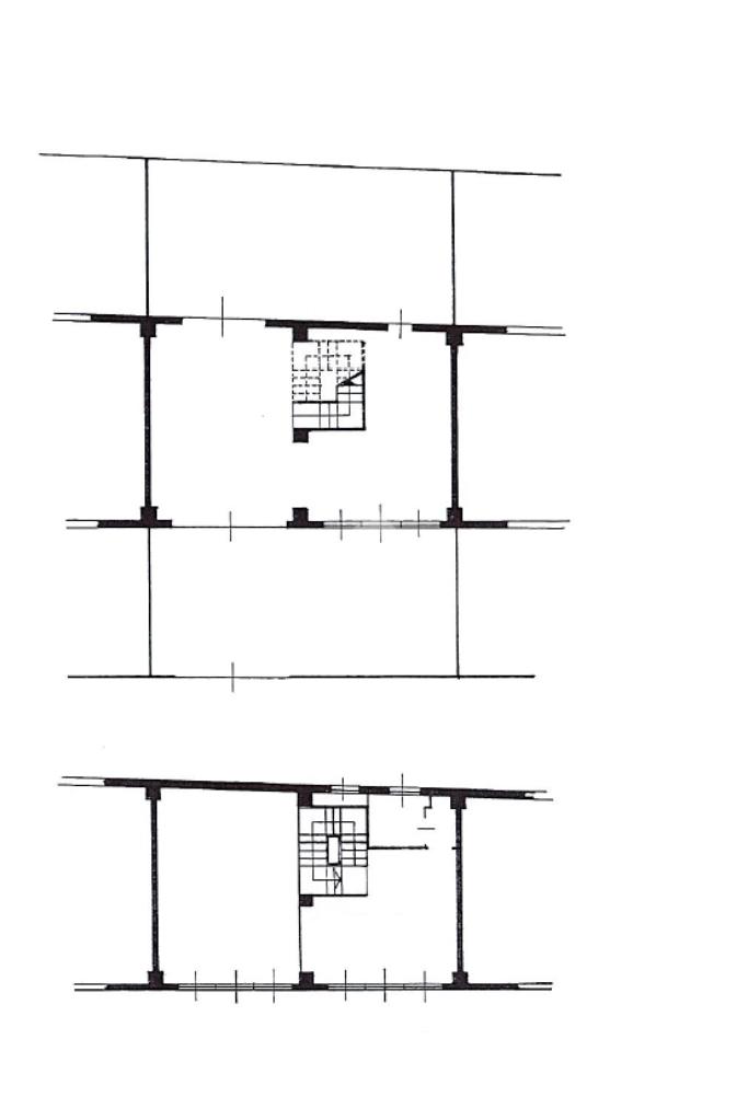
Proponiamo in affitto un capannone ad uso laboratorio, sviluppato su due livelli: piano terra e primo piano. La superficie totale è di circa 190 metri quadrati, con 130 metri quadrati al piano terra destinati all’area produttiva e 60 metri quadrati al piano primo, adibiti a uffici. Completa la proprietà un’area esterna privata di 40 metri quadrati.

DESCRIZIONE E PARTICOLARITÀ

La zona produttiva si trova al piano terra su una superficie di 130 metri quadrati, con un’altezza complessiva di 8 metri (5 metri sottotrave, per via del soppalco che ospita gli uffici). Lo spazio è aperto e funzionale, con un portone alto circa 4 metri.

Gli uffici occupano 60 metri quadrati distribuiti su un unico livello soppalcato.

L’immobile è dotato di impianto elettrico, illuminazione e servizio igienico.

UBICAZIONE E CONTESTO

Il capannone si trova nella zona industriale di Vignate, in una posizione strategica e ben collegata alle principali arterie stradali e autostradali. Nelle vicinanze sono disponibili 15 posti auto pubblici, ideali per clienti e fornitori.

Mostra tutto

Nelle vicinanze

Trasporto pubblico Trasporto pubblico
Cassina de' Pecchi
Cassina de' Pecchi
2,0 Km
Villa Fiorita
Villa Fiorita
2,5 Km
Via Galilei (Centro commerciale) (Vignate)
Via Galilei (Centro commerciale) (Vignate)
520 m
Via Galilei (Parco Malpaghetto) (Vignate)
Via Galilei (Parco Malpaghetto) (Vignate)
880 m
Approdo
2,8 Km
Ricariche auto elettriche Ricariche auto elettriche
Magazzini Mauri's
1,8 Km
Iperal Cassina De' Pecchi
1,9 Km
Scuole Scuole
Istituto comprensivo Carlo Levi
1,0 Km
Scuole Medie
1,3 Km
Scuole
1,4 Km
Istituto Professionale Niccolò Machiavelli
2,5 Km
ITCS Schiaparelli-Gramsci
2,6 Km
Farmacia Farmacia
Parafarmacia Ipercoop
270 m
Farmacia Sant'Ambrogio
1,2 Km
Farmacia
1,2 Km
Farmacia Comunale
1,5 Km
Ospedali Ospedali
Centro Sant'Ambrogio - Fatebenefratelli
2,7 Km
Supermercati Supermercati
Ipercoop
310 m
Sigma
1,2 Km
UNES
1,2 Km
Belli
1,2 Km
DPiù
1,6 Km
Negozi Negozi
United Colors of Benetton
180 m
C&A
250 m
Fiorella Rubino
250 m
Lovable
270 m
Camaieu
280 m
Bar Bar
Zambo Café
1,1 Km
Euro bar
1,1 Km
Crema Caffè
1,2 Km
La Galleria
1,2 Km
Bigio Bar
1,2 Km
Ristoranti Ristoranti
Mishi Mishi
410 m
Ristoranti
450 m
Cascina Bianca
460 m
La Sorgente
920 m
Il Mulino
1,0 Km
Mostra tutto

Caratteristiche

Rif.:
61127883
Piano:
Su più livelli di 2
Totale piani:
2
Posti auto:
15
Condizionamento:
Assente
Ascensore:
No
Mostra tutto
Prezzo Prezzo
€ 1.000 / mese
Spese annue Spese annue
€ 0

Classe Energetica

Questo immobile è esente da classe energetica
Anno di costruzione:
1982
Riscaldamento:
Assente

Ti interessa visionare l'immobile?

Fissa un appuntamento  Fissa un appuntamento

Richiedi informazioni

* Questi campi sono obbligatori
Affiliato
Industriale Steana Srl
Via Cerca, 1 20049 Settala (MI)

Il nostro staff


  • Gaia Barbieri
    Coordinatrice

  • Sara Colombi
    Collaboratrice

  • Alexandru George Receanu
    Affiliato

  • Veronica Sergio
    Collaboratrice

  • Manuel Tonelli
    Collaboratore

  • Sacha Varanini
    Affiliato
Via Cerca, 1 20049 Settala (MI)
Zona: Settala
Mostra su mappa
Affiliato
Industriale Steana Srl
Via Cerca, 1 20049 Settala (MI)

2025 Tecnocasa Franchising S.p.A. - P. IVA 08365160152 - Via Monte Bianco 60/A 20089 Rozzano (MI). Ogni agenzia ha un proprio titolare ed è autonoma. Privacy policy | Policy utilizzo | Cookie policy