Capannone in affitto

Liscate, Via bruno buozzi
€ 15.000 / mese
2 locali 2 locali
3000 Mq 3000 Mq
1 bagno 1 bagno

Capannone in affitto

Liscate, Via bruno buozzi

Questo immobile dispone di soluzioni frazionate

Descrizione annuncio

COSA SAPERE DELL’IMMOBILE

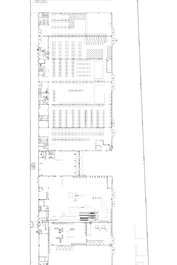
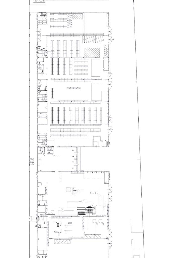
Proponiamo in affitto un capannone industriale di circa 3.000 metri quadrati, comprensivo di 270 metri quadrati di uffici al piano terra. L’immobile dispone di un’area esterna privata frontale, oltre a un’area esterna condominiale. Il capannone può essere frazionato in 3 unità da 1.000 metri quadrati ciascuna.

DESCRIZIONE E PARTICOLARITÀ

Il capannone è composto da un’unica campata rettangolare, con un’altezza di 6,5 metri (6,5 metri sotto È possibile acquisire due carriponte da 5 e 10 tonnellate. L’accesso è garantito da un ampio portone di 4 metri, ideale per carico e scarico merci. L’immobile è stato recentemente ristrutturato, impianto antincendio e impianto elettrico indipendente per ogni unità. Il complesso industriale è videosorvegliato e dotato di servizio di vigilanza attivo 24 ore su 24.

UBICAZIONE E CONTESTO

L’immobile si trova nella zona industriale del Comune di Liscate, un’area strategica per le imprese, grazie alla sua posizione favorevole rispetto alle principali arterie stradali.

Mostra tutto

Nelle vicinanze

Trasporto pubblico Trasporto pubblico
Trezzano Rosa, via Cervi
Trezzano Rosa, via Cervi
330 m
Trezzano Rosa, via Dante
Trezzano Rosa, via Dante
440 m
Ricariche auto elettriche Ricariche auto elettriche
Bennet Vaprio d'Adda
2,5 Km
Scuole Scuole
Scuola Primaria Mahatma Gandhi
430 m
Scuole
730 m
Istituto Comprensivo di Basiano
1,5 Km
Scuola dell'infanzia e primaria
1,7 Km
Scuola Secondaria di Masate
2,4 Km
Farmacia Farmacia
Farmacia Foffano
450 m
Farmacia
990 m
Farmacia Comunale
1,5 Km
Farcom Farmacia Comunale
2,8 Km
Supermercati Supermercati
U2
760 m
Silvana
1,7 Km
Supermercati
1,7 Km
Bennet
2,5 Km
Negozi Negozi
Pirola
720 m
Negozi
980 m
Bar Bar
Bar
540 m
Pandora
960 m
On The Road
1,1 Km
River Bar
2,3 Km
il nuovo bar di Fulvio
2,4 Km
Ristoranti Ristoranti
Ristoranti
900 m
Pizzeria da asporto "Le Piramidi"
980 m
La Fattoria Restaurante
1,4 Km
La voglia matta
1,5 Km
L'officina
1,6 Km
Mostra tutto

Caratteristiche

Rif.:
61127021
Piano:
Terra
Condizionamento:
Assente
Ascensore:
No
Riscaldamento:
Centralizzato
Giardino:
Privato
Mostra tutto
Prezzo Prezzo
€ 15.000 / mese
Spese annue Spese annue
€ 0

Classe Energetica

Questo immobile è esente da classe energetica
Anno di costruzione:
1980
Riscaldamento:
Centralizzato
Tipo impianto:
Ad aria
Tipo alimentazione:
Aria

Ti interessa visionare l'immobile?

Fissa un appuntamento  Fissa un appuntamento

Richiedi informazioni

Clicca su Leggi per aprire l'informativa
* Questi campi sono obbligatori
Affiliato
Industriale Steana Srl
Via Cerca, 1 20049 Settala (MI)

Il nostro staff


  • Gaia Barbieri
    Collaboratrice

  • Sara Bruno
    Coordinatrice

  • Sara Colombi
    Collaboratrice

  • Claudia Casuscelli
    Collaboratrice

  • Alexandru George Receanu
    Affiliato

  • Veronica Sergio
    Collaboratrice

  • Manuel Tonelli
    Collaboratore

  • Sacha Varanini
    Affiliato
Via Cerca, 1 20049 Settala (MI)
Zona: Settala
Mostra su mappa
Affiliato
Industriale Steana Srl
Via Cerca, 1 20049 Settala (MI)

2025 Tecnocasa Franchising S.p.A. - P. IVA 08365160152 - Via Monte Bianco 60/A 20089 Rozzano (MI). Ogni agenzia ha un proprio titolare ed è autonoma. Privacy policy | Policy utilizzo | Cookie policy