Capannone in affitto

Liscate, Via bruno buozzi
€ 10.000 / mese
2 locali 2 locali
2000 Mq 2000 Mq
1 bagno 1 bagno

Capannone in affitto

Liscate, Via bruno buozzi

Questo immobile appartiene ad un'unità principale con metratura più ampia

Descrizione annuncio

COSA SAPERE DELL’IMMOBILE

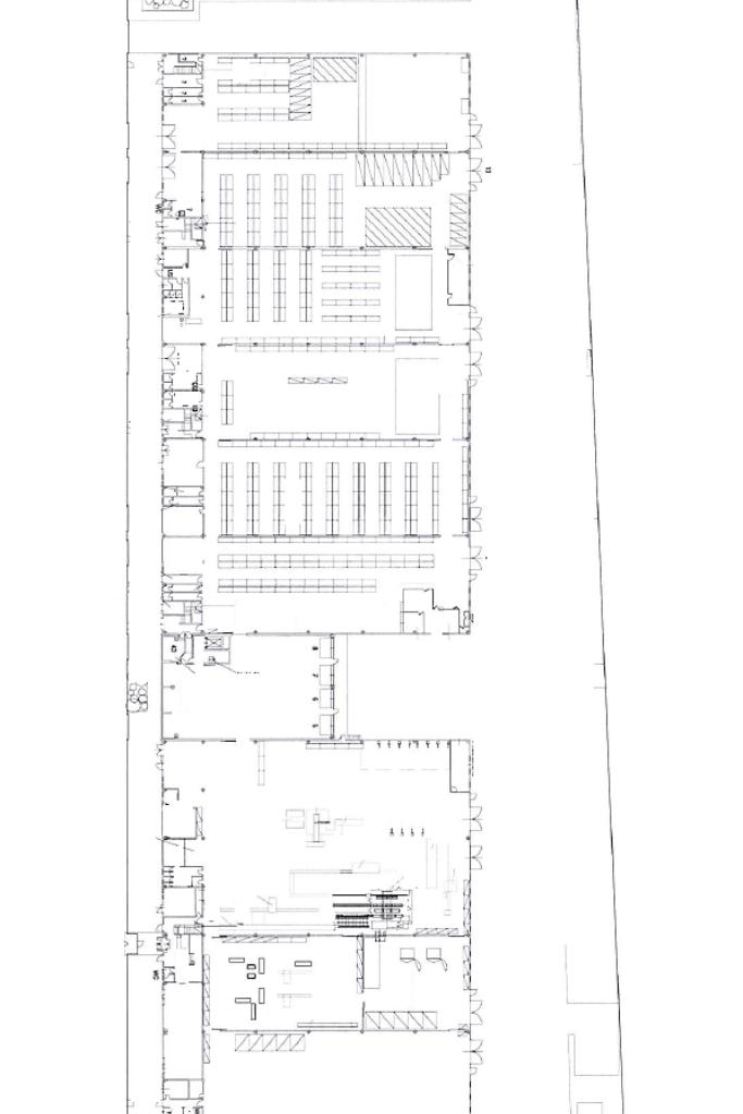
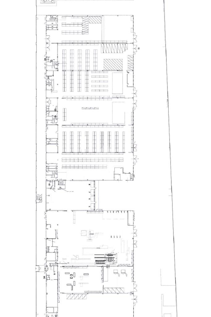
Proponiamo in affitto un capannone industriale di circa 2.000 metri quadrati, comprensivo di 270 metri quadrati di uffici al piano terra. L’immobile dispone di un’area esterna privata frontale, oltre a un’area esterna condominiale. Il capannone può essere frazionato in 2 unità da 1.000 metri quadrati ciascuna.

DESCRIZIONE E PARTICOLARITÀ

Il capannone è composto da un’unica campata rettangolare, con un’altezza di 6,5 metri (6,5 metri sotto È possibile acquisire due carriponte da 5 e 10 tonnellate. L’accesso è garantito da un ampio portone di 4 metri, ideale per carico e scarico merci. L’immobile è stato recentemente ristrutturato, impianto antincendio e impianto elettrico indipendente per ogni unità. Il complesso industriale è videosorvegliato e dotato di servizio di vigilanza attivo 24 ore su 24.

UBICAZIONE E CONTESTO

L’immobile si trova nella zona industriale del Comune di Liscate, un’area strategica per le imprese, grazie alla sua posizione favorevole rispetto alle principali arterie stradali.

Mostra tutto

Nelle vicinanze

Trasporto pubblico Trasporto pubblico
Trasporto pubblico
590 m
Via Torino
Via Torino
1,3 Km
stazione di Vignate
stazione di Vignate
1,9 Km
Scuole Scuole
Asilo Comunale
1,5 Km
Scuole Elementari
1,7 Km
Scuole Medie Etty Hillesum
1,8 Km
Istituto comprensivo Carlo Levi
2,2 Km
Scuole
2,7 Km
Farmacia Farmacia
Farmacia
1,7 Km
Farmacia Comunale
1,7 Km
Farmacia Sant'Ambrogio
2,0 Km
Farmacia Settala
2,9 Km
Supermercati Supermercati
Galassia
1,9 Km
Belli
2,0 Km
Sigma
2,0 Km
DPiù
2,4 Km
Viridea
2,9 Km
Negozi Negozi
Le Spighe
1,2 Km
Minimarket
1,3 Km
Negozi
1,6 Km
Ciceri
1,6 Km
Dolce e Salato
1,6 Km
Bar Bar
Bar Mary
1,2 Km
Chiosco
1,4 Km
Bar
1,7 Km
King Bar
1,8 Km
Bar Olivieri
2,0 Km
Ristoranti Ristoranti
Le Bistrot di Zii Gaetano
480 m
Bar Trattoria Terzo Girone
1,2 Km
SEARSON Srl
1,2 Km
Antica Trattoria Bersaglieri
1,5 Km
Ristorante Colomba
1,8 Km
Mostra tutto

Caratteristiche

Rif.:
61127022
Piano:
Terra di 1
Totale piani:
1
Condizionamento:
Assente
Ascensore:
No
Riscaldamento:
Centralizzato
Mostra tutto
Prezzo Prezzo
€ 10.000 / mese
Spese annue Spese annue
€ 0

Classe Energetica

Questo immobile è esente da classe energetica
Anno di costruzione:
1980
Riscaldamento:
Centralizzato
Tipo impianto:
Ad aria
Tipo alimentazione:
Aria

Ti interessa visionare l'immobile?

Fissa un appuntamento  Fissa un appuntamento

Richiedi informazioni

Clicca su Leggi per aprire l'informativa
* Questi campi sono obbligatori
Affiliato
Industriale Steana Srl
Via Cerca, 1 20049 Settala (MI)

Il nostro staff


  • Gaia Barbieri
    Collaboratrice

  • Sara Bruno
    Coordinatrice

  • Sara Colombi
    Collaboratrice

  • Claudia Casuscelli
    Collaboratrice

  • Alexandru George Receanu
    Affiliato

  • Veronica Sergio
    Collaboratrice

  • Manuel Tonelli
    Collaboratore

  • Sacha Varanini
    Affiliato
Via Cerca, 1 20049 Settala (MI)
Zona: Settala
Mostra su mappa
Affiliato
Industriale Steana Srl
Via Cerca, 1 20049 Settala (MI)

2025 Tecnocasa Franchising S.p.A. - P. IVA 08365160152 - Via Monte Bianco 60/A 20089 Rozzano (MI). Ogni agenzia ha un proprio titolare ed è autonoma. Privacy policy | Policy utilizzo | Cookie policy